污水厂恶臭治理

污水站恶臭治理

污水站在运行过程中,会不断的向周边的环境中释放臭气,臭气中含有的硫化氢、氨气、甲硫醇和烃类化合物等组成,具有易挥发、嗅阀值低等特点,不仅严重污染周边居民生活环境,危害人体健康,而且对污水处理厂的金属材料、设备和管道具有腐蚀性。针对污水站的恶臭气体的治理分为三部分,污水池加盖密闭、废气收集和处理排放。加盖是第一步,这一部分设计应注意尽量减少密闭的空间,进而减少废气处理的风量,废气收集大多采用玻璃钢管道,从反吊膜较高点引风(反吊膜设计应考虑引风口),送风至废气处理设备,最后经15米高塔达标排放,以达到国家环保要求,且不影响周边环境。

污水站恶臭治理工艺图

污水站恶臭治理工艺图

恶臭治理工艺

目前,治理恶臭气体的主要方法有物理法、化学法和生物法3类。

  • 01

    物理法:是不改变恶臭物质的化学性质,只是用一种物质将它的臭味掩蔽和稀释,或者将恶臭物质由气相转移至液相或固相。常见方法有掩蔽法、稀释法、冷凝法和吸附法等。

  • 02

    化学法:是使用另外一种物质与恶臭物质进行化学反应,改变恶臭物质的化学结构,使之转变为无臭物质或臭味较低的物质。常见方法有燃烧法、氧化法和化学吸收法(酸碱中和法)等。

  • 03

    生物法:是利用微生物的代谢活动使恶臭物质氧化降解为无臭物质。

物理、化学及生物脱臭的主要方法及特点

方法 原理 特点 适用范围
掩蔽法 采用更强烈的芳香气味或其他令人愉快的气味与臭气掺和,以掩蔽臭气,使之能被人接受 可尽快消除恶臭影响,灵活性大,费用低,但恶臭成分并没有被去除掉,除臭率一般< 50%,但低投资。 适用于需要立即地、暂时地消除低浓度恶臭气体影响的场合
稀释法 将有臭味的气体通过烟囱排至大气,或用无臭空气稀释,降低恶臭物质浓度和臭味 费用低,但易受气象条件的影响,恶臭物质仍然存在 适用于处理中、低浓度的有组织排放的恶臭气体,受环保限制。
燃烧法 在高温下恶臭物质 与燃料气充分混合, 实现完全燃烧 净化效率高,恶臭物质被彻底氧化分解,但设备易腐蚀,消耗燃料,投资高,处理成本高,易形成二次污染 适用于大型设施的高浓度、小气量、难处理的臭气处理
氧化法 利用强氧化剂氧化恶臭物质,使之无臭和低臭 净化效率高,但需要氧化剂, 处理费用高 适用于处理大气量的、高中浓度的臭气
吸收法 使用水等溶剂溶解臭气中的恶臭物质 可处理大流量气体,工艺成熟,但净化效率不高,消耗吸收剂,易形成二次污染 适用于处理大气量、高中浓度的臭气
吸附法 利用吸附剂的吸附功能使恶臭物质由气相转移至固相 净化效率很高,可处理多组分的恶臭气体,但吸附剂费用昂贵,再生比较困难,对待处理的恶臭气体要求高 适用于处理大气量、低浓度、高净化要求的恶臭气体
生物法 利用微生物的代谢活动使恶臭物质氧化降解为无臭物质 净化效率很高,可处理复杂组分的恶臭气体,无二次污染, 但对待处理的恶臭气体要求适宜的生物、温度和含湿量 适用于中低浓度的恶臭气体的处理。


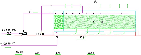
生物除臭滤池

生物除臭滤池

生物滤池除臭工艺采用“微生物”降解技术,利用生长在填料上的除臭微生物对臭气中的恶臭物进行吸附、吸收和代谢从而达到除臭的目的。

生物除臭滤池主体由洗涤区+生物滤床过滤区组成,采用一体式矩形全封闭结构安装;滤池结构采用碳钢箱体+玻璃钢防腐,外加保温,除臭设备顶部留有人孔供维修检修用,塔体内部设有喷淋系统检修口。

生物滤池工艺图

生物滤池工艺图

技术特点

· 对成分复杂的臭气适应性强,可适应臭气浓度波动范围大的情况下使用。
· 运行费用低、能耗低、噪音低;可靠性高、安全性高、去除效率高、全程为自动控制,不需要专人管理。
· 结构紧凑、新颖、可实现设备与控制分离,实现一键式操作。
· 净化率高,可以全年运行,每天连续运行24h,其处理过程不产生二次污染。

活性炭吸附塔

活性炭吸附塔

活性炭吸附塔,是一种高效率经济实用型有机废气的净化与治理装置;该设备是净化较高浓度有机废气和喷漆废气的吸附设备,是利用活性炭本身高强度的吸附力,结合风机作用将有机废气分子吸附住,对苯、醇、酮、酯、汽油类等有机溶剂的废气有很好的吸附作用。

根据处理气体污染因子的不同及处理废气量的大小确定吸附面积、。同时针对不同工艺生产中所排放的废气特性,如排放废气温度、是否含有油雾、粉尘等相关参数,在废气设备进口部分内置或增设冷却器、过滤器等预处理装置或功能段。很好的保护了吸附段,确保吸附塔在高效状态下运行。

活性炭吸附工艺图

活性炭吸附工艺图

技术特点

· 吸附效率高,能力强;
· 设备构造紧凑,占地面积小,维护管理简单方便,运转成本低;
· 能够同时处理多种混合有机废气;
· 采用自动化控制运转设计,操作简易、安全;
· 全密闭型,室内外皆可使用。

低温等离子

低温等离子

离子法废气处理系统合成主要包含主反应器,光触媒反应导入装置。废气经过收集系统收集后进入离子催化氧化废气处理合成系统,离子反应导入装置对主反应器产生离子,在其内部的价电子被激发跨过禁带跃入导带,生成的电子空穴被导入主反应器内,并扩散到反应器内过滤板的二氧化钛表面上,穿过界面与吸附在过滤板上的物质发生氧化还原反应。其空穴能量7.5eV,氧化电位+3.0V,具有极强的氧化能力,能够氧化有机化合物,达到完全矿化的程度,生成二氧化碳、水和无机物。处理后的废气继续进入水洗塔,与水反应生成羟基自由基,电子具有还原性,能与氧分子发生还原反应生成过氧自由基,这些自由基具有很强的氧化能力,也能够氧化有机物。从而使得废气达到完全的净化,达标排放。

离子体是不同于气态、固态、液态的第四态物质,由高能电子、正负离子、自由基(OH、H、O、O3等)和中性粒子等组成。气体经过离子处理装置的反应器区域时,在高能电子和自由基强氧化等多重作用下,气体中的有机物分子链被断开,发生一系列复杂的氧化还原反应,生成CO2、H2O等无害物质,正负离子可以空气清新。另外,借助离子体中的离子与物体的凝并作用,可以对小至亚微米级的细微粒物(0.1~3微米)进行有效的收集。

低温等离子工艺图

低温等离子工艺图

技术特点

· 脉冲电压高达50KV,电子能量高达7ev;
· 耗电低220V/110W;
· 模块化组合设计,现场安装简便;
· 净化效率95%以上。